32 X 32 Feet House Plan घर क नक स 32 फ ट X 32 फ ट Ghar Ka Naksha Youtube
You have searched for 32X32 Mirrors and this page displays the best product matches we have for 32X32 Mirrors to buy online in February 22 We carry millions of home products with free shipping from furniture and decor to lighting and renovation32x32housedesignplannorthfacing Best 1024 SQFT Plan Modify Plan Get Working Drawings Project Description Who says a lavish home must be enormous?
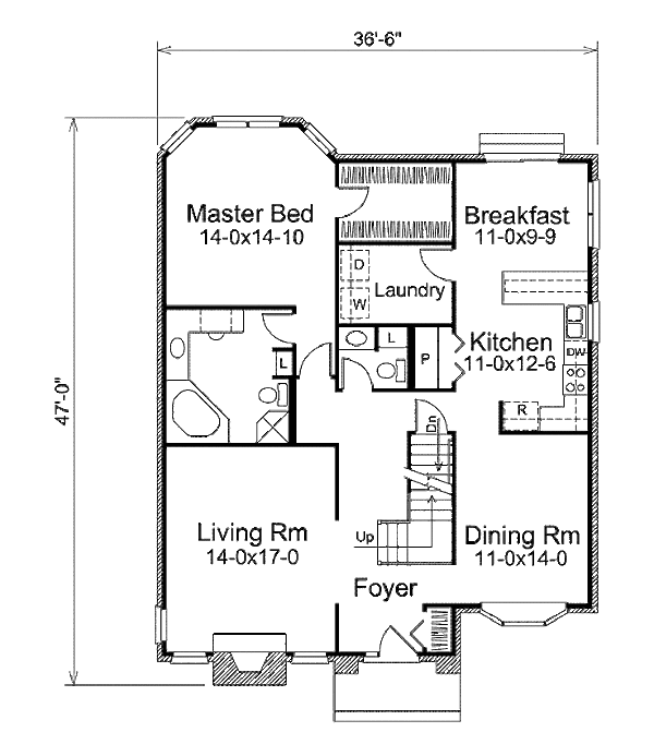
32x32 32 * 32 house plan
32x32 32 * 32 house plan-This insightful arrangement conveys a design with space where you need it the kitchen, extraordinary room, and ace suite without overabundance areaExplore andy j's board "32'x32' floor plans" on See more ideas about floor plans, small house plans, tiny house plans
32 X 32 House Plan Ii 4 Bhk House Plan Ii 32x32 Ghar Ka Naksha Ii 32x32 House Design Youtube
House Plan for 30 Feet by 30 Feet plot (Plot Size 100 Square Yards) GharExpertcom has a large collection of Architectural Plans Click on the link above to see the plan and visit Architectural Plan section Vaastu for Plot Building a dream home needs vigilant considerations and apart from the good architectural design and constructionEven if you don't post your own creations, we appreciate feedback on ours Join us! 32x32 House Plans 32x32 House Plans or Small Cabin Floor Plans Fresh Floor 32x32 House Plans Country One Story House Plan with Open Concept and 32x32 House Plans 32x32 6 Bedroom House 2 934 Sq Ft Pdf Plan Arlington 32x32 House Plans 32x32 House Plans 28 Images 32x32 House Floor Plans
How much would it cost to build a 32x32 garage?The topselling product within 32x32 Porcelain Tile is the MSI Crystal Bianco 32 in x 32 in Polished Porcelain Floor and Wall Tile (2133 sq ft/Case) Can 32x32 Porcelain Tile be returned?First time building a garage from the footings all the way to installing garage doors It was a lot of work but rewarding As the old saying goes we are a Ja
32x32 32 * 32 house planのギャラリー
各画像をクリックすると、ダウンロードまたは拡大表示できます
![]() | ![]() | ![]() |
![]() | ![]() | ![]() |
![]() | ![]() | ![]() |
「32x32 32 * 32 house plan」の画像ギャラリー、詳細は各画像をクリックしてください。
![]() | ||
![]() | ![]() | ![]() |
![]() | ![]() | ![]() |
「32x32 32 * 32 house plan」の画像ギャラリー、詳細は各画像をクリックしてください。
![]() | ||
![]() | ![]() | ![]() |
![]() | ![]() | ![]() |
「32x32 32 * 32 house plan」の画像ギャラリー、詳細は各画像をクリックしてください。
![]() | ![]() | |
![]() | ![]() | ![]() |
![]() | ![]() | ![]() |
「32x32 32 * 32 house plan」の画像ギャラリー、詳細は各画像をクリックしてください。
![]() | ![]() | |
![]() | ![]() | ![]() |
![]() | ![]() | ![]() |
「32x32 32 * 32 house plan」の画像ギャラリー、詳細は各画像をクリックしてください。
![]() | ![]() | ![]() |
![]() | ![]() | |
![]() | ![]() | ![]() |
「32x32 32 * 32 house plan」の画像ギャラリー、詳細は各画像をクリックしてください。
![]() | ![]() | |
![]() | ![]() | |
![]() | ![]() | ![]() |
「32x32 32 * 32 house plan」の画像ギャラリー、詳細は各画像をクリックしてください。
![]() | ![]() | ![]() |
![]() | ![]() | |
![]() | ![]() | ![]() |
「32x32 32 * 32 house plan」の画像ギャラリー、詳細は各画像をクリックしてください。
![]() | ![]() | |
![]() | ![]() | ![]() |
![]() | ![]() | |
「32x32 32 * 32 house plan」の画像ギャラリー、詳細は各画像をクリックしてください。
![]() | ![]() | ![]() |
![]() | ![]() | ![]() |
![]() | ![]() | ![]() |
「32x32 32 * 32 house plan」の画像ギャラリー、詳細は各画像をクリックしてください。
![]() | ![]() | ![]() |
![]() | ![]() | |
![]() | ![]() | |
「32x32 32 * 32 house plan」の画像ギャラリー、詳細は各画像をクリックしてください。
![]() | ![]() | |
![]() | ![]() |
Find wide range of 32*32 House Design Plan For 1024 SqFt Plot Owners If you are looking for singlex house plan including Craftsman Floorplan and 3D32×32 Metal Building Uses A metal building has a wide range of uses such as garages, barn stalls, retail office space, personal GYM, yoga center, dance studio, industrial storage, boat storage, RV storage and even as temporary residences A 32′ by 32′ metal building is a popular size structure for various applications, whether you use it for residential, agricultural or commercial purposes



























































































0 件のコメント:
コメントを投稿